212 Fairfield Ln,Hillsborough Twp., NJ 08844-1711
Fairfield Ln, Hillsborough Twp., Somerset
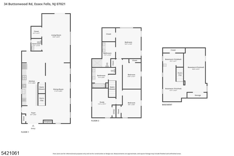
Beautiful Dutch Colonial ideally located across from Grover Cleveland Park in one of the area’s most sought-after communities, served by highly ranked Essex Fells schools. This sun-filled home offers an open floor plan with seamless flow between the living, dining, and family rooms perfect for everyday living and entertaining. A welcoming covered porch features a slate tile floor, reclaimed redwood railing with custom handrail, and mahogany stairs. The chef’s eat-in kitchen boasts Cortez countertops, Fabuwood cabinetry, and new stainless-steel appliances, all backed by a 1-year warranty. Extensive upgrades include a new gas line, 220-amp electrical service with all new wiring, Andersen windows and doors, solid wood interior doors with brass hardware, and all new insulation. Original oak flooring has been beautifully matched with new flooring throughout. Exterior highlights include cedar shake and clapboard siding, a new garage, Belgium block curb, blacktop driveway, and bluestone/brick walkways leading to a private brick patio. The spacious owner’s suite offers a walk-in closet and a luxurious en-suite bath with marble mosaic flooring and a large slate shower. Additional features include updated full and half baths with porcelain tile, a finished basement, new stairways, and a convenient second-floor laundry chute. Just move in and enjoy! Fireplace, chimneys & flues being conveyed in “as-is” with no known issues. showings had to be moved due final construction delay.
Fetching AI response...
Fairfield Ln, Hillsborough Twp., Somerset
Country Acres Dr, Union Twp., Hunterdon
Center St, Clinton Town, Hunterdon
Dunbar Court, Bedminster Twp., Somerset
County Road 519, White Twp., Warren
Fetching AI response...
Designed & Developed by eGrove
to save your favourite homes and more
Log in with emailDon't have an account? Sign up
Enter your email address and we will send you a link to change your password.
to save your favourite homes and more
Sign up with emailAlready have an account? Log in
Chat with us
